Casa N
Vila a fost premiată în cadrul Anualei de Arhitectura Bucuresti a Ordinului Arhitectilor din Romania, ediția 2015, cu premiul Rehau. Anuala de arhitectura reuneste cele mai apreciate proiecte pornind de la locuinte, restaurări și mergând pana la cărți de arhitectura.
Mai multe informații pe site-ul Anualei.
Amplasament: orașul Voluntari, cartierul Pipera
Suprafața desfășurată: 231 mp
Perioada: 2014-2015
Misiunea de proiectare: proiectare de arhitectură AP, DTAC, PT, DDE și amenajări interioare
Fotografii: © Bogdan Andrei Fezi
Exteriorul casei crează o membrană prin care se întrepătrund gradina cu spațiile interioare. Mai multe filtre conduc pașii privitorului. Prima trecere inițiatică este prin gradina care separa casa de strada. Următorul strat este terasa de la parter, de mari dimensiuni, care permite locatarilor sa se bucure de natura.
Livingul este inima casei: aici se întâlnesc circulațiile, spațiile, lumina.
De pe canapele poate fi observata o buna parte a casei: accesul de la exterior, scara care duce către dormitoarele de la etaj, zona televizorului.
Spațiul tinde sa nu mai aibă limite. Prin ușile glisante de mari dimensiuni, acesta se poate deschide total către terasa grădinii. Prin dubla înălțime se poate observa balconul interior al etajului. Scara este imponderabila: cu treptele de otel îmbrăcate in lemn, cu balustada din sticla ultrarezistenta, securizata si laminata,
lăsând privirea sa circule nestingherita, scara dispare ca limita a spațiului.
Regina livingului este lumina. Ferestrele pe doua niveluiri sunt un real spectacol. Lumina este amplificata de suprafața alba a parchetului.
Alaturi de living, bucataria este pupitrul de comanda al vilei. De la blatul mesei, gazdele controleaza vizual intregul spatiu: poarta de acces, gradina, intrarea in casa, geamurile de mari dimensiuni care, odata deschise, fac ca gradina sa patrunda in casa. De aici se vede interiorul in toata deschiderea lui: scara care urca la etaj, televizorul, locul de discutii cu canapeaua.
Dormitoarele sunt toate orientate catre gradina. Cel matrimonial are culorile serii, intruchipate de tapetul semnat de cunoscutul designer Karim Rashid. Dormitorul camerei copilului este plin de viata.
Concepția arhitecturala generala este intregita prin grija pentru detalii.
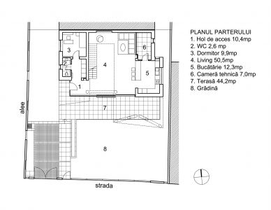
După cum reise și din planuri, casa gravitează în jurul livingului central.









































